| Sign In | Join Free | My polstate.com |
|
Brand Name : HUAMEI
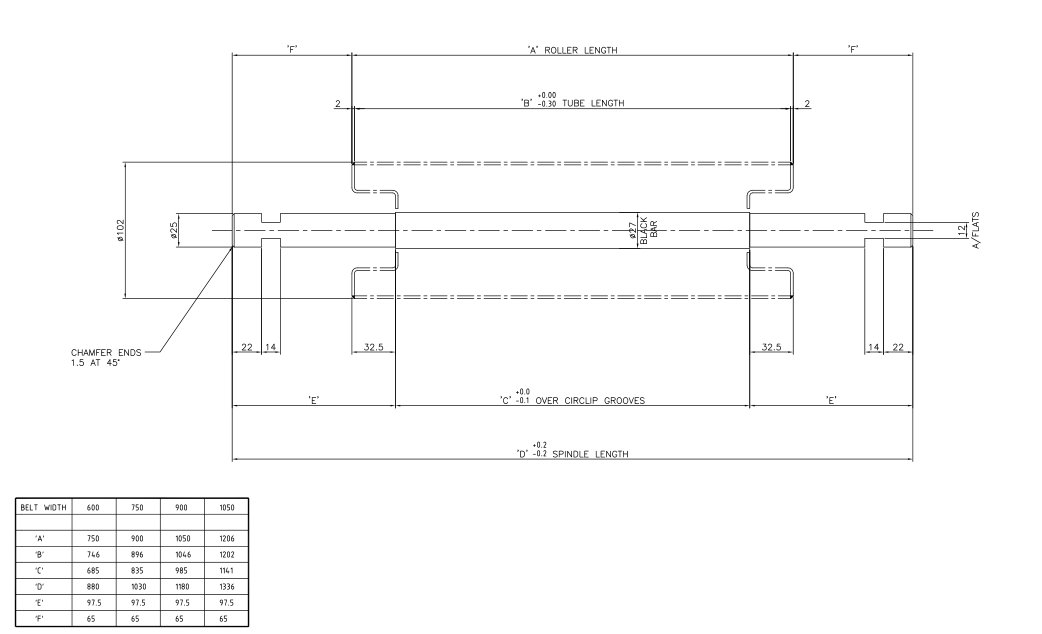
Return roller
Return Roller is used to support rubber belt of return section to reduce belt running resistance and skirt wear, and let belt drape degree never exceed a certain limit,so ensure belt running smoothly and prolong the service life.

|
|
600mm 750mm 900mm Width Mining Conveyor Rollers Images |